Projekte
Büro
Kontakt
Impressum
Datenschutz
Gewerbebau
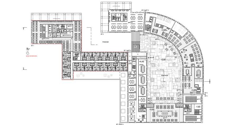
HPN | Hauptpost Nürnberg
Neubau von Hotels, Büro und Gewerbeflächen auf dem Gelände der alten Hauptpost Nürnberg.
Bauherr:
Projektgesellschaft Nürnberg GmbH
Architekt:
Max Dudler (LPH 1-4)
:
Esslinger Deitermann Architektur (LPH 5)
LPH:
Ziffer 1 – 9
Fertigstellung:
2019
HPN | Hauptpost Nürnberg
Arnulfpost München
PMM | Pasinger Marienplatz München
The Flag | München
Teilabriss und Neubau eines Bürogebäudes München
FAN | Fasangarten
HOH | Neubau eines Wohn- und Geschäftshauses
Neubau eines Gebäudes mit Biomarkt, Arztpraxen und Büros sowie einer Tiefgarage
BLZK | Haus der Bayrischen Zahnärzte
HIEX Düsseldorf
Erweiterung evangelisches Landeskirchenamt München
MFÜ | Büro- und Geschäftshaus Fürstenstrieder Straße in München
MK4 | Neubau Gesundheitszentrum Freiham
ICU | Bürogebäude Gräfelfing
NYD | Bürogebäude Nymphenburger Höfe
Altezza | Bürogebäude mit Tiefgarage
NYN | Bürogebäude Nymphenburger Höfe
Conti Bürogebäude München Riem
N5 | Büro- und Verwaltungsgebäude mit Tiefgarage Nymphenburger Str. 5